
Timberline Ridge
Bozeman, Montana
Creating Community Through Thoughtful Design
Nestled in beautiful Bozeman, Montana, against the backdrop of the Bridger Mountain Range, the Timberline Ridge Manufactured Home Community stands as a beacon of quality, attainable housing and a vibrant, livable community. Here, the thoughtfully designed park, playground, and dog parks weave a tapestry of joy, connection, and outdoor adventure that enhances the quality of life for all residents.
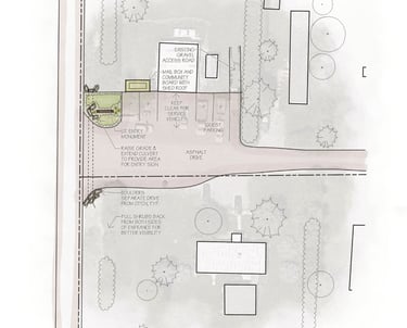
Upon entering Timberline Ridge, residents and visitors are greeted by a mountain rustic entry sign, native landscaping, and a modern mailbox cluster with a canopy. The entry drive directs you to an expansive park that invites both relaxation and recreation. The centerpiece is a large pavilion, a gathering spot for multiple families, complete with a gas grill for communal barbecues, a porch swing for quiet reflection, and a cornhole court that brings out everyone's playful spirit. This pavilion is more than a structure; it is the heart of the community, where friendships are forged and memories are made.
The playground at Timberline Ridge is a wonderland for children, designed to spark imagination and encourage active play. Natural play elements are balanced nicely with traditional play equipment, creating an inviting space that includes a climbing and sledding hill, exciting slides, a tunnel for endless games of hide-and-seek, a play sand surface for safety and impromptu creative building, and a swing set that brings joy with every swing. Each feature is crafted to inspire exploration and adventure, making it a cherished spot for families.
For the four-legged members of the community, Timberline Ridge offers separate dog parks for large and small dogs, ensuring a safe and enjoyable experience for all. These parks are more than just places to let pets run free; they are social hubs where owners can connect while their dogs frolic and play. The lit walking paths that wind through these parks provide a serene setting for evening strolls, fostering a sense of peace and security.
The design of Timberline Ridge reflects a deep understanding of the needs and desires of its residents. By creating spaces that encourage interaction, play, and relaxation, the community fosters a strong sense of belonging. It’s not just about living in Timberline Ridge; it’s about thriving. Each element, from the pavilion to the playground to the dog parks, is a testament to the commitment to quality and the belief that everyone deserves a beautiful, functional, and joyful place to call home.
Services Provided:
Site Analysis, Site Planning, Schematic Design, Conceptual Design, Design Development, Construction Documents, Cost Estimating, Permitting, Construction Observation, Landscape Architecture and Design
Client:
Cabrillo Management Corporation
Parks & Playgrounds




















Construction Progress • Summer 2024
